Skip to main content
Velkommen
Portfolio
Services
Om arkitektfirmaet
Kontakt
Velkommen
Portfolio
Services
Om arkitektfirmaet
Kontakt
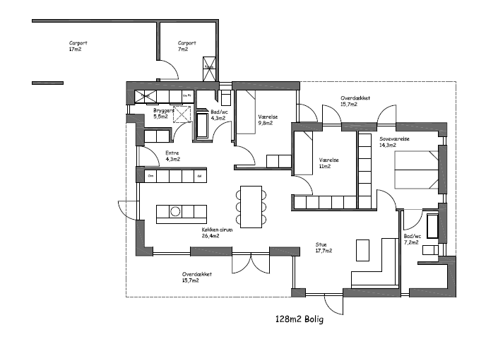
Villa Bjerreskov 2020
〈 Tilbage til projekter
Videre til næste projekt 〉